Конструкция винтовой лестницы на второй этаж
Приусадебное хозяйство /17-фев,2014,13;18 /
22494

Красивое, компактное сооружение, оно использует минимум полезной територии дачного домика. Сделанная своими руками винтовая лестница это отличное решение для обустройства перехода меж этажами.
Многие здесь спрашивали, как сделать в небольшом котедже компактную винтовую лестницу. Эта тема меня очень заинтересовала, пересмотрел много информации и в итоге сконструировал свой вариант. Надеюсь, это решение пригодится многим дачникам.
Виды домашних лестниц
• Обычная с прямыми маршами и одной лестничной площадкой;
• обычная с одним прямым маршем без площадки;
• угловая с одной переходной площадкой;
• П-образная с двумя площадками;
• смешанные;
• винтовые;
Оптимальная длина ступени лестницы - 30 см, высота- 15см.
Исходные данные
• Высота помещения -2500 мм.
• Радиус (R), т.е. длина ступеней - 700 мм.
• Ширина ступени (ш) -240 мм.
• Проем в межэтажном перекрытии - 1400x700 мм.
• Смещение по окружности осей ступеней - через 183 мм.
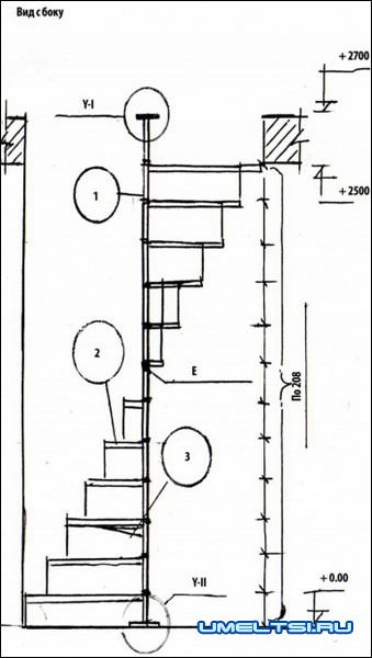
Условные обозначения
1 - Колонна-опора.
2 - Ступень.
3 - Кронштейн.
а-b - Перила ограждающие.
c-d - Проем на втором этаже.
y-l - Узел крепления колонны к балке второго этажа.
у-ll - Узел крепления колонны к полу первого этажа.
е - Точка крепления лестницы к стене.
Последовательность установки
• Нанизать кронштейны (ступени) на колонну.
• Выставить конструкцию на место.
• Закрепить косынкой верх колонны (у-l).
• Закрепить косынкой низ колонны (у-ll).
• Соединить ступени шпильками диаметром 6 мм.
• Окончательно закрепить лестницу.
• Провести отделочные работы.
Примечания
• Кронштейны (ступени) я изготовил из листовой стали толщиной 5 мм, приварив их к патрубкам из труб диаметром 60 мм и длиной 208 мм.
• Ступени в горизонтальной проекции заходят друг задруга.
• На стене рядом с лестницей я укрепил поручень, чтобы было легче подниматься и сохранять равновесие.
• Проем в пределах второго этажа обязательно надо оградить перилами.
• На рабочую поверхность ступеней наклеил старый линолеум.
• Некоторые узлы я заказывал мастерам в автосервисе, где есть необходимый инструмент для сварки и резки. Да, пришлось немного заплатить, зато моей лестнице не страшны теперь никакие катаклизмы.