Самодельная прицепная картофелесажалка для мини-трактора
Полезные приспособления /19-окт,2010,19;03 /
182312

Многие земледельцы мечтают о мини-тракторе. Его можно купить в магазине или сделать самому. Но польза от механического помощника будет только в том случае, если он укомплектован орудиями, позволяющими механизировать сельскохозяйственные работы. Одно из таких орудий — самодельная прицепная двухрядная картофелесажалка, о которой и пойдет речь.
Действительно, если уж имеется энергетическое средство (то есть мини-трактор), то зачем тратить силы и время на такой утомительный и непроизводительный труд, как посадка картофеля вручную? С помощью надежного механизма эта безрадостная работа превращается чуть ли не в игру. Становится возможным без особого напряжения засадить клубнями земельную площадь от нескольких соток до гектара и более. Мы, например, в нашем фермерском хозяйстве в иной год засаживали до двух гектаров. На это уходило от силы два дня.
Как же устроена наша картофелесажалка? Поскольку основная ее задача — равномерная подача клубней на определенную глубину с ровной заделкой почвы, то у нас с этим никаких проблем нет. С рядностью, глубиной высева и заделкой легко справляются простейшие механические приспособления — бороздорезы, семяпроводы и заделывающие диски.
Узел номер один в любой сажалке или сеялке — высевающий аппарат, который обеспечивает равномерную (по норме) подaчу клубней или семян в почву. Для того, чтобы реализовать этот процесс, инженеры в конструкторских бюро немало ломают головы, изобретая сложные механизмы с большим количеством передач и приводов. Самодеятельному же конструктору такие механизмы не всегда по силам.
...Никогда, наверное, не забыть мне своей первой посевной. Получив осенью 1991 года землю, я тут же уволился с работы и взялся за изготовление мини-трактора. Зима прошла довольно быстро, но главное было сделано: в конце марта, урча мотором, трактор уже бегал по весенним лужам. За оставшееся до посевной время я успел изготовить к нему прицеп, окучник и плуг. Не хватало только сажалки, так как основной профиль нашего фермерского хозяйства — выращивание картофеля.
Уже и семена были готовы, и минеральные удобрения припасены, и горюче-смазочные материалы завезены, а я все никак не решался взяться за сажалку. Больно сложной казалась задача... И так прикидывал, и этак, гору бумаги изрисовал эскизами, но простого и надежного высевающего аппарата придумать не мог.
И вдруг — идея: а нужен ли вообще высевающий аппарат? Что может быть проще... человеческих рук! Посажу на агрегат жену — она и заменит сложный механизм. Ведь всего-то надо — ритмично брать клубни из бункера и бросать в семяпроводы.
Идея полностью себя оправдала. На изготовление картофелесажалки я потратил неделю (сроки поджимали) и буквально через полчаса после того, как был закручен последний болт, испытал ее тут же, в огороде, благо накануне его вспахал.
Результат превзошел все ожидания. Клубни ложились на заданную глубину, расстояние между ними в борозде оставалось примерно одинаковым (300—350 мм), заделкв борозды тоже удовлетворяла. У меня словно гора с плеч свалилась.
Наутро мы были уже в поле...
Принцип работы на сажалке такой. В бункер засыпается несколько мешков картофеля да на багажник кладутся в запас еще два-три мешка для того, чтобы посреди поля не остаться без клубней. Сеяльщик, или сажальщик — кому как удобнее называть, садится на свое место, водитель включает первую передачу, и мини-трактор медленно начинает двигаться. Бороздорезы, отрегулированные на заданную глубину, образуют две ровные борозды, на дно которых через трубы-семяпроводы сеяльщик ритмично бросает клубни картофеля.
Промежуток между клубнями зависит от скорости движения мини-трактора, которая не должна превышать 1 км/ч, и ритма движения рук сеяльщика. Необходимые навыки появляются быстро, и скоро сеяльщик сам становится похожим на машину — настолько однообразны его движения. От сеяльщика, кстати, многое зависит, и не любой человек тут справится. Ведь нужно успеть одновременно обеими руками взять по картофелине, поднести к семяпроводам, бросить их туда... И так тысячи раз, в одном и том же ритме, с одной и той же амплитудой движения, иначе расстояния между клубнями в ряду будут заметно отличаться, а это нежелательно.
После того, как клубни попали в борозду, их надо засыпать землей. Для этого на сажалке предусмотрены заделывающие диски. Так как диски расположены под углом к бороздам, то, вращаясь от трения о почву, они сдвигают часть земли в сторону борозд и заваливают их.
Заделывающие диски устроены таким образом, что, ослабив стремянки, прижимающие стойки к опорам, можно изменять не только степень заглубления дисков в почву, но и угол их атаки, поворачивая стойки вокруг собственной оси. Есть и третья регулировка — перемещением дисков в ту или иную сторону по осям, на которых они вращаются. Для этого применяются регулировочные втулки (по четыре на ось): переставляя втулки, можно менять ширину захвата дисков. Комбинируя три названные регулировки в зависимости от структуры почвы, можно добиться почти идеальной работы заделывающих дисков.
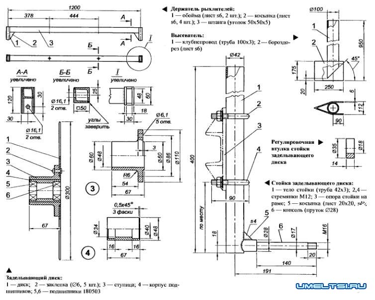
Итак, клубни уложены на заданной глубине, на необходимом расстоянии друг от друга, ровно завалены почвой. Вроде бы всё? Нет, требуется еще одна операция. Надо убрать следы, оставленные колесами трактора и картофелесажалки. Убирают их рыхлители — культиваторные лапы на стойках. Заглубление лап в почву тоже регулируется — вертикальным перемещением стоек и фиксированием их в обоймах сквозными пальцами.
Кроме «заметания» следов, рыхлители выполняют еще одну работу — служат маркерами, помогающими трактористу ориентироваться на следующем (обратном) проходе мини-трактора. Надо учитывать, что расстояние между смежными рядами в проходах может отличаться от 600 мм в большую сторону, но никак не в меньшую, иначе при последующей междурядной обработке кусты картофеля в этих рядах будут подрезаться рабочими органами культиватора или окучника.
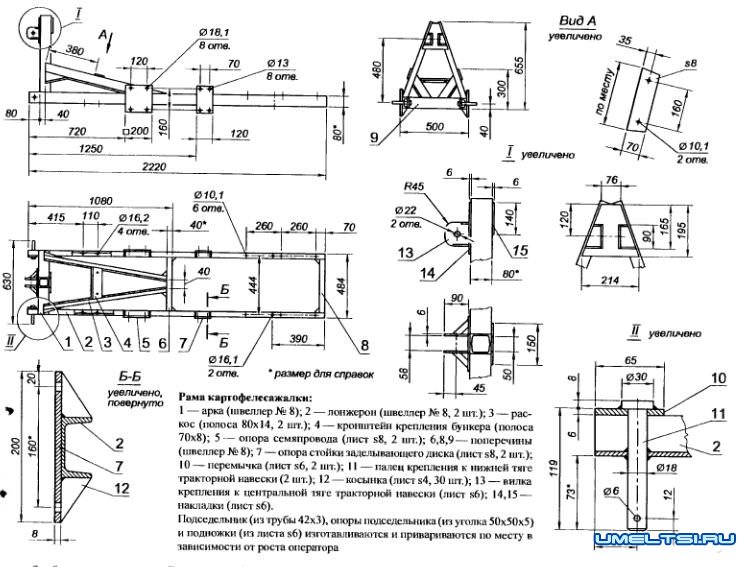
Чертежи картофелесажалки своими руками
Теперь о конструкции сажалки.
Рама ее, как и в любой машине, служит основой, к которой крепятся все остальные узлы. По большей части рама сварена из отрезков швеллера № 8. Устройство ее простое: два продольных лонжерона, связанные тремя поперечинами.
Спереди к лонжеронам приварены арка с вилкой крепления к центральной тяге и два пальца крепления к нижним тягам тракторной навески; сбоку, с обеих сторон, — пластинчатые опоры семяпроводов и стоек заделывающих дисков; сзади — три доски настила багажника.
Рама усилена двумя наклонными раскосами из полосовой стали, тянущимися от арки до средней поперечины, двумя трапециевидными накладками на арке и множеством косынок из стального листа толщиной 4 мм в виде прямоугольных треугольников, длина катетов которых колеблется от 40 до 8О мм.
Кроме того, к лонжеронам прикреплены опоры подседельника из уголка 50x50x5 мм и подножки из 6-мм стального листа, местоположение которых на раме определялось в зависимости от роста сеяльщика. По его росту подбиралась и высота ножек подседельника, поэтому размеры их не приводятся. Само же сиденье сделано из уголка 50x50x5 мм (каркас), досок (днище) и поролона, обтянутого кожзаменителем (подушка).
К наклонным раскосам приварен пластинчатый кронштейн, к которому двумя болтами М10 крепится бункер посадочного материала (картофельных клубней) объемом 0,17 куб.м. Бункер сделан из листов фанеры толщиной 12 мм, покрытых олифой, а затем водостойкой краской.
Снизу к раме болтами прикреплены колесная ось и держатель рыхлителей.
Колесная ось сборная. В основе ее — толстостенная труба, в концы которой вставлены выточенные на токарном станке цапфы, или шипы. В трубе шипы удерживаются стальными штифтами, которые запрессованы в радиальные отверстия, просверленные после сборки. Головки штифтов заварены.
Колеса сварены из нескольких листовых деталей. Их изготовление — довольно трудоемкий процесс, но он оправдан тем, что широкая цилиндрическая поверхность колес меньше уплотняет почву. Впрочем, возможно использование и подходящих резиновых колес от сельскохозяйственных машин.
К колесам приварены ступицы, каждая из которых вращается на двух подшипниках 205, насаженных на шипы. От загрязнения подшипники ограждены крышками и войлочными прокладками.
К раме картофелесажалки ось прикреплена четырьмя болтами М16 при посредстве двух прижимов из стального листа.
Держатель рыхлителей, наоборот, довольно прост. Это штанга с обоймами на концах, в которые вставляются стойки культиваторных лап. Квадратная штанга сварена из двух отрезков уголка 50x50x5 мм (полученный профиль гораздо лучше противостоит скручиванию — основной своей рабочей нагрузке, чем обычный «квадрат», хотя последний — технологичнее), а обоймы — из кусочков листовой стали толщиной 6 мм. Размеры обойм подобраны так, чтобы стойки культиваторных лап входили в них с миллиметровыми зазорами.
Не потребовали особых материальных и трудовых затрат и высеватели. Каждый из них состоит из семяпровода — трубы диаметром 100 мм, снизу к которой приварен бороздорез из 6-мм листовой стали. Толщина стенки трубы 3 мм (меньше нельзя — тонкостенная согнется под напором сопротивляющейся почвы). Степень заглубления бороздорезов при ослабленных стремянках регулируется вертикальным перемещением семяпроводов вдоль их опор на раме. Стремянки после регулировки нужно затягивать очень крепко, иначе семяпроводы развернутся вокруг своей оси — нагрузки на бороздорезы значительные.
Заделывающие диски взяты от сеялки СО-4,2. Они потребовали небольшой переделки, поскольку имеют всего по одному подшипнику 203. Я проточил ступицу каждого диска до нужного размера и запрессовал в нее корпус, рассчитанный уже на два подшипника 160503. Новые подшипники имеют такие же посадочные размеры, что и старые (разве что чуть пошире), но закрыты с одной стороны уплотнением, поэтому им и отдано предпочтение. Установив подшипники уплотнениями наружу, получил узел, полностью изолированный от грязи и пыли.
Эта картофелесажалка — довольно массивная машина. Мини-трактору с двигателем, скажем, от мотороллера «Муравей» и массой в 300—500 кг она будет, наверное, «не по зубам». Но тягачу побольше и помощнее — вполне по силам. Например, мой мини-трактор, оборудованный двигателем УД-2, вместе с водителем, балластными грузами на задних колесах и противовесом спереди весит около 850 кг, и работает он вкупе с сажалкой без всякой натуги. А противовес нужен для того, чтобы во время подъема сажалки трактор сохранял устойчивость, не задирал «носа». Без противовесов такое бывало.
Труд на земле тяжел, но благодарен. И в возможностях человека сделать его более легким, производительным и интересным. Нужно только смелее браться за изготовление различных механических помощников. Коль есть инструменты, подходящие материалы, время и, главное, интерес к делу — все получится. Если не с первого раза, то уж со второго — точно!