Вездеход-каракат с четырьмя ведущими колесами
Самоделки вездеходы /06-фев,2022,13;17 /
370584

Постройку нового вездехода я начал с подготовки подробных чертежей. Знаю, что многие самодельщики творят без документации - все собирают, как говорится, на коленке, но это не лучший вариант, поскольку при таком методе в процессе работы приходится многое подгонять и переделывать.
На подготовку основных чертежей у меня ушло два месяца. При разработке документации уже давно пользуюсь САПР SolidWorks. В начале главное -определиться с компоновкой, прикинуть расположение основных узлов и агрегатов. Но, как показывает практика, на начальном этапе проектирования не стоит глубоко погружаться в детали, и тратить время на мелочи, поскольку доработки в процессе постройки и эксплуатации все равно неизбежны.

Сначала сложилась картинка в голове, какой силовой агрегат, тип трансмиссии, какие мосты и все остальное буду использовать. На этот раз решил поэкспериментировать с шарнирно-сочлененной схемой с четырьмя ведущими колесами, о конструкции моего гусеничного вездехода «Мишутка» можно прочитать в сентябрьском номере журнала за 2018 год.
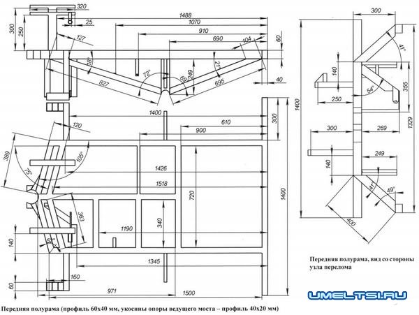
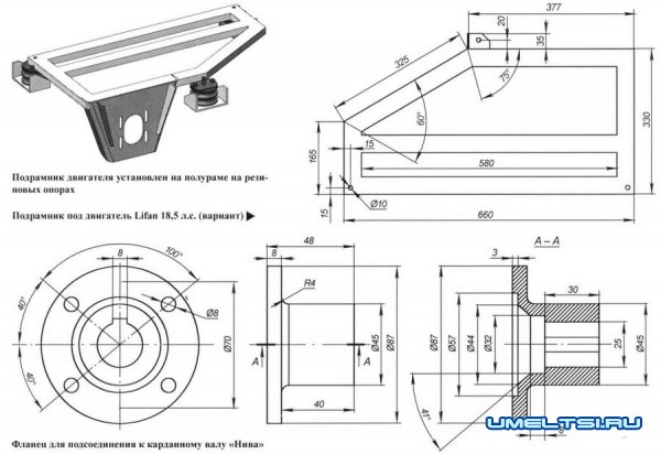
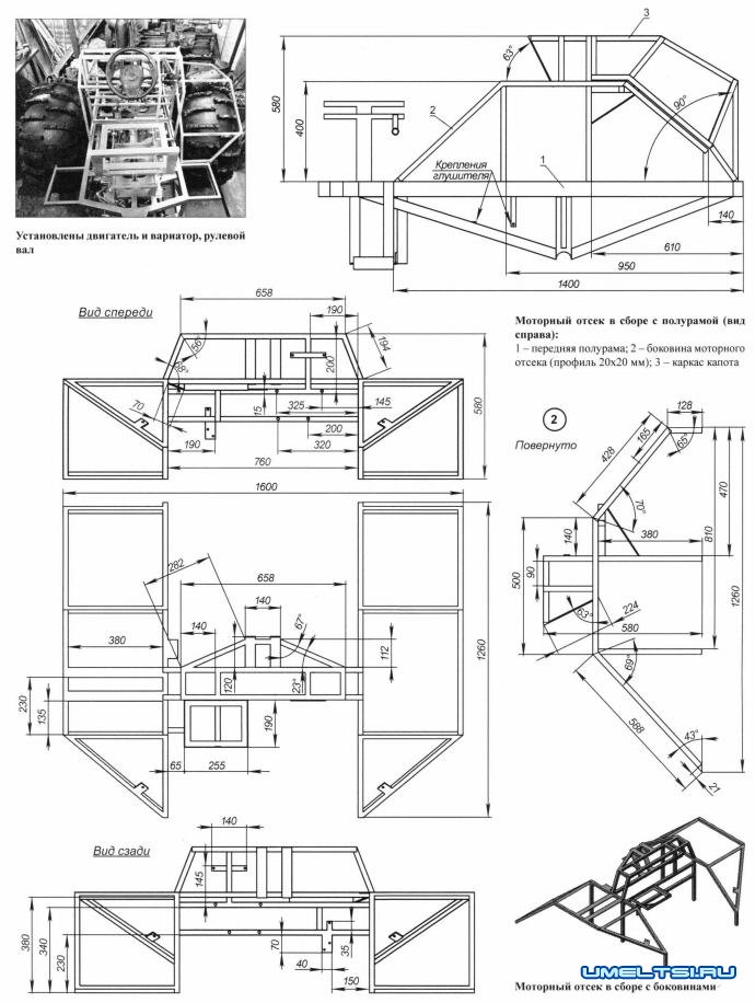
Проектирование новой модели вездехода начал с шарнирно-сочлененного узла, за его основу взял ступицу от автомобиля ВАЗ-2108. Предварительно определился с размерами (1500x800 мм) верхней части передней рамы, а нижнюю часть рамы я уже подгонял позднее при установке коробки передач. Элементы рамы ферменного типа сделаны из стального профиля размером 60x40 мм, верхний подрамник для двигателя из профилей 40x20 и 20x20 мм.

После начального этапа проектирования занялся закупкой основных узлов и агрегатов. Приобрел два двигателя Lifan мощностью 18,5 л.с. поскольку была идея построить сразу два вездехода, один колесный, другой гусеничный, и оценить преимущества и недостатки каждой конструкции в ходе сравнительных испытаний. В итоге пока решил остановиться на колесном варианте. В идеале, конечно, нужен компактный мотор мощностью не менее 24 л.с., однако на момент постройки за приемлемые деньги в продаже таких не нашел. Мосты укороченные от ГАЗ-3110, главную пару в них поменял на 1:5,125. Трансмиссия комбинированная, коробка передач и сцепление от ВАЗ-2110 в сочетании с вариатором. Такая конструкция более надежна, чем при использовании одного вариатора, и обеспечивает значительно больший диапазон передаточных чисел. На вариаторе установлен фланец под карданный вал от «Нивы», который передает крутящий момент на коробку передач. Двигатель стоит на металлической плите толщиной 6 мм, которая закреплена на верхнем подрамнике. Топливный бак смонтирован слева от двигателя, на специальных кронштейнах. Коробка передач размещена на нижней части рамы.
Рулевое управление с гидравлическим приводом, так как в условиях бездорожья оно надежнее, и усилие на руле значительно меньше, нет риска при ударах сломать пальцы. Насос-дозатор и рулевой гидроцилиндр взял от трактора МТЗ-82.

Водительское кресло самодельное, на пружинно-рычажной подвеске с амортизатором, установлено на отдельном подрамнике. Каркас сиденья выполнен из металлического профиля. Под креслом предусмотрен отсек для установки аккумулятора. Рулевая колонка регулируется по углу наклона. Педальный узел автомобильного типа.
Для упрощения процесса проектирования и постройки силовая структура задней рамы, на которой впоследствии будет установлен кузов, примерно такая же, как и у передней рамы. В моем вездеходе шарнирно-сочлененный узел работает только на поворот. При этом задний мост установлен на качалке. Как показала практика, такой вездеход менее склонен к перевороту в отличие от стандартной схемы перелома рам, где обе части подвижны друг относительно друга в нескольких плоскостях.
Привод на заднюю ось от коробки передач осуществляется с помощью карданного вала от ГАЗ-3110. Колеса ВИ-3 взял от автомобиля КрАЗ-255Б, диски на бедлоках, для герметизации борта шин использовал специальный герметик.
Трансмиссионный тормоз находится внутри рам. Так что даже если вездеход при переезде через высокое препятствие повиснет на рамах, можно не опасаться за сохранность тормозного диска и суппорта.
После сборки вездеход загрунтовал, покрасил, провел ходовые испытания. У машины хорошие показатели геометрической проходимости, что позволяет уверенно преодолевать самые сложные препятствия, также она обладает большим запасом плавучести.

После проведения испытаний решил сделать кузов. Размеры кузова 1800x1600 мм, каркас собран из профиля 20x20 мм. При постройке кузова возникали проблемы с его жесткостью. Задние двери у меня открываются влево-вправо и вниз. Поскольку верхнего профиля в силовом каркасе нет, то при открытых бортах кузов теряет жесткость. Есть «калитка», открывается как у меня, то есть нужно приобретать замок с фиксацией на растяжение. Если двери открываются вниз, то достаточно сделать фиксаторы из уголка.
После сборки каркас кузова загрунтовал. Затем нарезал листы обшивки, которые надежно закрепил с помощью заклепок. Всего на вездеход ушло около 700 заклепок диаметром 4 мм и длиной 8 мм. Пол, лавочки, элементы обшивки изготовлены из ламинированной фанеры толщиной 8 мм. Лавочки закреплены на длинных рояльных петлях. Под лавками установлены рундуки для экспедиционного снаряжения. Кузов не стал приваривать к раме, а закрепил его 6 болтами, приварив на раме дополнительные ушки, а в профиле кузова просверлил отверстия под болты. При желании можно вместо пассажирского кузова установить упрощенную бортовую платформу, например, чтобы ездить в лес за хворостом, или перевозить другие грузы. Также установил большие зеркала заднего вида, светодиодные фары, автомобильную радиостанцию, сзади на специальных кронштейнах закрепил две экспедиционные канистры емкостью по 10 л.

Как показали испытания, для данного вездехода мотор Lifan при движении с полной нагрузкой все же слабоват, как я и предполагал вначале. Решил доработать машину. Для этого прибрел двигатель Loncin мощностью 30 л. с. Поставил винтовую блокировку ТЗС на 10 кг на задний мост, на переднем мосту блокировка «Автоспринтер» на 8 кг была установлена еще раньше. Также заменил подшипники редуктора и полуосей заднего моста, так как старые уже износились. В коробке передач сначала планировал только заменить главную пару 3.9 на 5.3, но в итоге пришлось заменить и саму коробку, так как у меня была от ВАЗ-2110, а я заказывал пару на ВАЗ-2108, а они разные. Разобрал моторный отсек, примерил новый двигатель. Но вскоре поставил Lifan обратно,
поскольку для установки нового силового агрегата надо полностью переделывать моторный отсек, так как по длине движок не помещался. Нужно было пилить нижнюю раму, у двигателя Loncin коленчатый вал на 20 мм выше, а это значит, что надо поднимать выше вариатор. Проще построить новый вездеход. В итоге вернулся к первоначальному варианту, обновил только трансмиссию. Также, пока двигатель был снят, заменил гидравлические тяги, так как они уже имели надрезы, рукоятку переключения коробки передач для лучшей эргономики перенес к рулевой колонке.
Испытания показали, что с измененной главной пары в коробке передач тяга значительно увеличилась, и особой необходимости в установке более мощного двигателя нет.
Чертежи самодельного вездехода



Видео самодельного вездехода
Максим ЧИНЁНОВ