Гаражные ворота распашные своими руками
Слесарное дело /17-дек,2013,01;28 /
106570

Беря во внимание нынешние расценки на изготовление гаражных ворот, все чаще автовладельцы стремятся собрать и поставить ворота для гаража своими руками. Процесс изготовления и установки распашных гаражных ворот совсем не сложный, как кажется на первый взгляд. Предлагаем подробную инструкцию по изготовлению гаражных ворот.
Изготовление распашных гаражных ворот своими руками
Если решено, что рама ворот будет изготавливаться из металлического уголка, то нужно провести подготовительные работы: нарезать уголки заданных размеров, концы их обрезать под углом в 45°. Для точности разметки углов можно использовать специальное приспособление, разработанное для таких целей - стусло, или "строительный уголок". Такое приспособление существенно упростит разметку при изготовлении гаражных ворот.
Углы будущего стыка должны быть направлены внутрь воротного проема. Лучший по прочности способ стыковки уголков между собой - сварка. И далее соединение стыков в гаражных воротах будем использовать сварку. Смотрите последовательность работ сборки гаражных ворот на фото.
Подготовленные по требуемому размеру и обрезанные по концам под намеченным углом, уголки укладываются по контуру будущего проема ворот. Для того, чтобы это правильно сделать, организуется монтажная площадка. Она должна представлять собой ровную, по горизонту, поверхность с асфальтовым, или с бетонным покрытием. Если такой поверхности нет, можно использовать для монтажной основы бетонные блоки.
Уложив уголки и соединив углы каркаса, перед началом сварочных работ проверяют геометрию созданной конструкции. Все уголки рамы должны находиться в одной горизонтальной плоскости, что контролируется строительным уровнем; кроме того, размеры обоих диагоналей прямоугольника каркаса должны быть совершенно одинаковы.
Начиная монтаж каркаса гаражных ворот, необходимо слегка "прихватить" углы каркаса, чтобы не нарушилась геометрия собранной конструкции, после чего можно проваривать углы основательно, продолжая проверять размеры и горизонтальность рамы. Если во время сварки от температуры "пошли" плоскости уголка, их нужно выправить механическим путем. Получив, в результате сварки, готовую раму, ее необходимо проверить "по месту", чтобы, при необходимости, сразу внести коррективы.
Створки гаражных ворот изготавливают, также начиная с каркаса, устройство которого определяется, исходя из материала, которым будут обшиваться створки.
Если створки будут обшиваться листовой сталью, то необходимо делать усиленный каркас, применяя для его основы профильную трубу с размерами 20х40 мм, с толщиной стенки 2 мм, не менее.
Готовя к монтажу рамы створок, необходимо учитывать, что размеры створок должны иметь необходимые зазоры, от 5 мм до 10 мм, между своими краями, и внутренней поверхностью воротной рамы.
Готовые створки вставляются в проем гаражных ворот, соразмерно выравниваются и жестко фиксируются. Далее, методом сварки, монтируются воротные петли, которые, как правило, по способу изготовления - точеные, в конструкции имеют подшипник. Размеры петель обычно не превышают 20х120 мм.
Способ использования: штырь петли - вверх, на каркасе гаражных распашных ворот монтируется часть петли со штырем.
После того как гаражные ворота сделаны устанавливаем замок. Подбираем реечный или сувальдный. Далее необходимо все металлические поверхности зачистить и окрасить. Изнутри по желании гаражные распашные ворота можно утеплить пенопластом и обшить вагонкой.
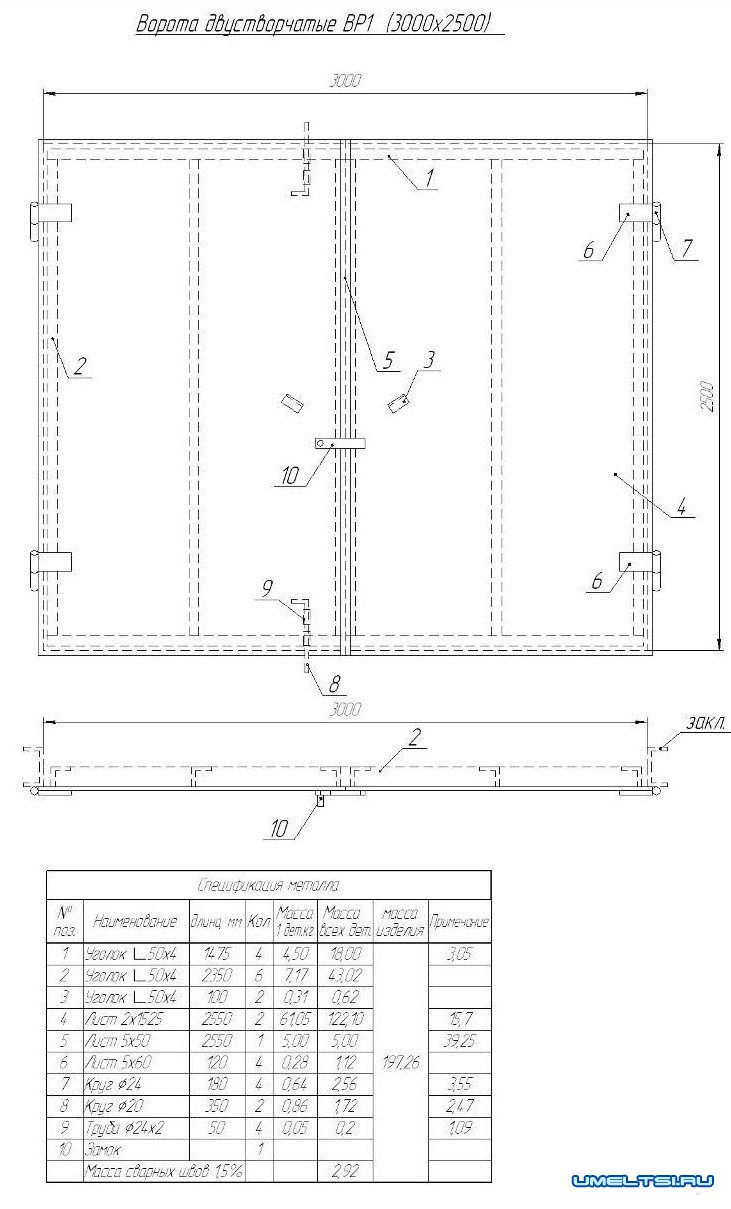
Гаражные ворота детальные чертежи
Распашные металлические гаражные ворота: видео
Просмотрев и изучив материалы, фото работ, чертежи гаражных ворот, видео по установке и изготовлению гаражных ворот своими руками у вас не должно остаться вопросов, так как более обширной статьи в сети вы не найдете:)