Мангал своими руками из металла чертежи, фото
Слесарное дело /17-мая,2016,23;14 /
14414

Настала теплая пора года, время пикников, шашлыков и других вкусностей на костре. Предлагаю, у кого еще нет, сделать своими руками мангал. Сделать его самым простым, обыкновенным, металлическим, зато таким удобным в применении (такой мангал легко транспортируется с места на место не занимая большую территорию) и не надо "придумывать велосипед" все уже придумали до нас, мы только можем немножко его усовершенствовать.
У каждой хозяйки есть какой-нибудь секретный фирменный рецепт, вот так и у мастера может быть своя изюминка в изготовлении того или иного приспособления. Моя доработка, на дне мангала поверх металлического дна выложен керамический красный кирпич. Благодаря этому днище мангала и нижние стенки не накаляются от огня, еще кирпичи одинаково распределяют температуру по всему мангалу, длительно сохраняя тепло жара.
Если вы выехали на природу, чтобы не таскать за собою кирпичи их легко можно заменить песком или глиной засыпав ими дно мангала.

Описание: изготовление мангала из металла своими руками.
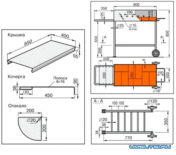
1. На листе бумаги чертим чертеж с размерами будущего мангала.
2. Соответственно размерам варим ящик.
3. Делаем ножки две пары, к одной паре прикрепим колесики, а ко второй ко дну ножек наварим для прочности кругленькие пластины.
4. Привариваем к ящику ножки
5. К ножкам в нижней их части привариваем вдоль и поперечно металлические прутья соответствующего размера, на них мы сложим дрова.
6. Сбоку привариваем длинную изогнутую металлическую ручку с крючочками (она также нам будет служить для поклажи разных принадлежностей)
7. Привариваем основу столика после чего зашиваем его листом из металла.
8. В боковых стенках мангала сверлим 8 проемов радиусом 7,5 мм оставляя расстояние от дна 10см. (через них будет поступать в зону горения кислород).
9. Из металлического листа с антикоррозийным покрытием вырезаем крышку к мангалу.
10. Защищаем все сварочные швы и покрываем мангал краской, затем лаком.
Когда мангал полностью высохнет устанавливаем его на предназначенное место, на дно ложем жаростойкий кирпич.

Можете теперь испытать на практике мангал, сделанный своими руками.