Банная печь-каменка
Строительство /02-фев,2014,04;32 /
20699

В полноценной русской банной печи должна быть каменка с камнями, которые нагреваются огнем от пылающих дров. Это создаёт изысканный здоровый банный дух плюс аромат берёзового веника!
Обычно сначала строят саму баню, а потом в ней — банную печь. В данном случае мне сначала пришлось сложить печь, совместив её с имеющейся стеной. Баню строили вокруг готовой печи.
Саму баню предполагалось пристроить к дому. Поэтому предварительно в наружной стене дома пришлось пробить проём, в котором со стороны кухни и должна была находиться топочная дверка и зольник банной печи.
Основание печи на уровне пола дома сложено. В проёме стены видно кухонное пространство.
Установлены колосники камеры каменки. Можно формировать её стенки и закладывать камни
Первые ряды основания печи сложены «сплошняком» с перевязкой швов. На 7-м ряду я начал выкладывать зольник и установил поддувальную дверку, в 9-м ряду зольник перекрыл, установил колосниковые решётки, а также разместил и закрепил топочную дверку.
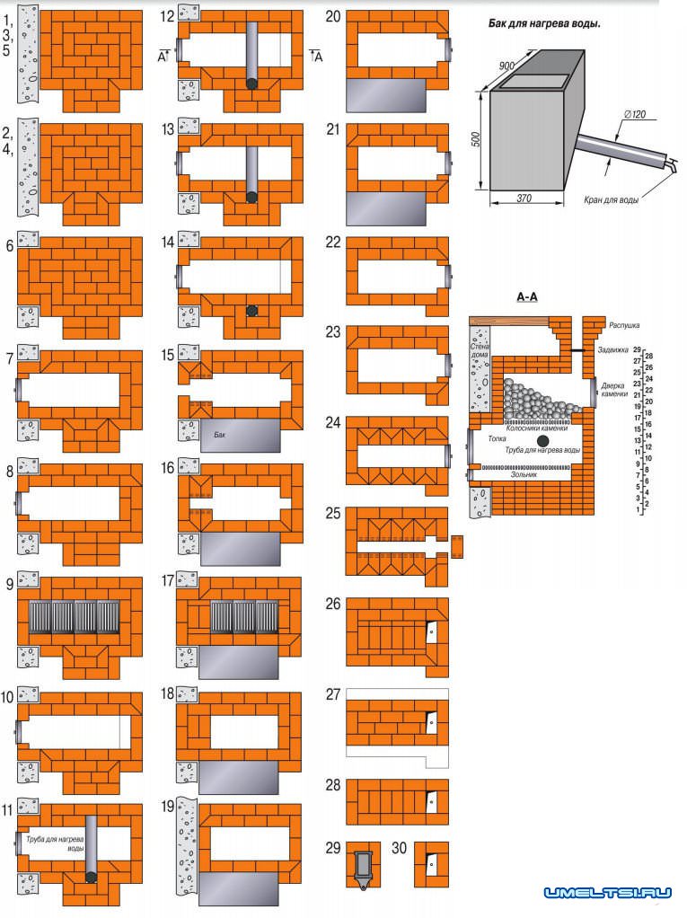
На 11-м ряду расположена труба от бака для нагрева воды, стоящего на кирпичах 14-го ряда. Участок тубы, находящийся в зоне открытого огня, не должен иметь сварочных швов, иначе возможны протечки. Трубу заложил кирпичом при кладке 11-14-го рядов. Опору для бака с водой также закончил выкладывать в 14-м ряду. С 15-го по 18-й ряды сформировал и перекрыл топочный проём, выходящий в дом. Проём топочной дверки перекрыл кирпичами «в замок» без применения стальных уголков.
Каменку начал закладывать камнями (горкой к задней стенке печи) с 18-го ряда, одновременно с кладкой стенок. Дверку для поддавания пара (плескания воды) я установил на 20-м ряду, а камеру каменки начал перекрывать с 24-го ряда и завершил перекрытие на 28-м ряду.
В такой банной печи жизненно необходима распушка, иначе когда раскалятся камни в каменке, перегреется потолок вокруг трубы, и тогда возможно возникновение пожара.
Во время кладки печи промежуток между телом печи и стеной дома (проём) закладывал с помощью своеобразного раствора — смеси битого кирпича, глины и песка.
Пришлось повозиться с кирпичом. С помощью болгарки снимал с него наплывы и заусенцы, с тыльной стороны доводил толщину кирпича до 65 мм, чтобы обеспечить при кладке одинаковые 3-мм швы. Конечно, это достаточно трудоёмко, но обеспечивает качественную и красивую кладку. Для украшения и защиты трубы от осадков я сложил свой «фирменный» колпак с крутыми скатами.
Порядовка печи-каменки для бани
Андрей БУРЧИК,
г. Озёрск Челябинской обл.
ozerskab@mail.ru
г. Озёрск Челябинской обл.
ozerskab@mail.ru