Как построить баню недорого, быстро и качественно
Строительство /10-окт,2019,10;44 /
4265

Построить баню можно недорого и быстро: дня за три, например, или за неделю. Иногда цена на баню из бревна может конкурировать с ценой каркасного строения.
Баня с нашего производства доставляется на место установки на крытой еврофуре — это сохраняет внешний вид бани во время транспортировки. На любой большой площадке перегружаем её на манипулятор или если есть возможность подъезда фуры непосредственно к самому участку, то выгружаем и устанавливаем с помощью крана.
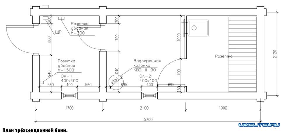
Размеры бани по осям — 5700 x 2120 мм. Соответственно, фундамент такой же и шириной не менее 150 мм. Высоту определяет заказчик. Но это касается ленточного фундамента. Самый бюджетный вариант — бетонные фундаментные блоки на ровной площадке. Возможны также бетонные буронабивные сваи.

Чаще всего строение устанавливают на металлические винтовые сваи (диаметр — 108 мм, толщина сваи — 4 мм, лопасти — 5 мм). Как правило, для фундамента бани используется восемь свай. Их монтаж выполняется согласно заранее рассчитанному свайному полю по следующему алгоритму: завинчивание свай, обрезка свайного поля в общий уровень, бетонирование М300, монтаж оголовка. Весь монтаж занимает порядка З-A часов.
Пол бани устанавливается на металлический профиль 120 x 120 с толщиной металла 4 мм, для того чтобы максимально предохранить первые венцы бани от влаги.

Пирог пола состоит из:
• обрезной доски 50 x 100 ММ;
• минерального утеплителя 100 ММ;
• профессиональной паро-изоляции «Технониколь Паро-барьер С500»;
• оцинкованного желоба и сливного трапа для отвода воды из бани;
• чистового пола — сухой шпунтованной доски 38 мм.
Рама со всем «пирогом» весит порядка 650 кг. Вес бани — около 4 т, поэтому она устанавливается на фундамент под своим весом.

Перегородка в трёхсекционной бане сделана по каркасной технологии: сухие доски, между которыми размещены утеплитель и пароизоляция. Монтаж такой перегородки выполняется с помощью манипулятора или крана, при отсутствии такой возможности — вручную. В стене уже сделаны проёмы с предустановленным обрамлением под печь, а также установлена деревянная дверь.
Бревно в бане — камерной сушки. Заготовка диаметром 210 мм цилиндруется до 200 мм, далее она отправляется в сушильную камеру, а затем на финишную цилиндровку до диаметра 180 мм. Цвет бани—любой, на выбор заказчика. Сруб — в «чашу». Межвенцовый утеплитель — джут. Оконные и дверные проёмы сформированы уже на производстве. Мы также используем металлические шпильки диаметром 25 мм по шести чашам, через все венцы, что обеспечивает монолитность конструкции и гарантирует энергоэффективность бани.
Стропила сделаны из 120-мм строганой доски, собраны А-образным способом на болтах и 12-мм шпильках. Обрешётка — 25-мм обрезная доска, 16 шт. Сама кровля не утепляется, но потолок утеплён 100-мм минеральной ватой с пароизоляцией. На кровлю укладывается металлочерепица, цвет — на выбор заказчика.
Возможен монтаж мягкой черепицы. Для этого дополнительно нашивается 12-мм OSB-плита, на которую набиваются гонты мягкой черепицы. Срок возведения кровли — всего 2-3 часа, так как материалы соответствующим образом уже подготовлены на заводе-изготовителе.

Чердак закрыт фронтонами, облицованными блокхаусом под бревно. В связи с тем что фронтоны закрываются наглухо, доступ к ним ограничен, но по желанию заказчика можно смонтировать дверь на чердак и проходки по полу, чтобы можно было сушить веники для парения. Однако объём чердака невелик (встать в полный рост там не получится), поэтому он эксплуатируется редко.
На кровлю уходит 12 листов металлочерепицы размером 1,95 x 1,1 м. Она укладывается с нахлёстом и закрепляется специальными саморезами под цвет кровли. Через кровлю проходит дымоход из сэндвич-трубы с минераловатным негорючим наполнением. На кровле сверху устанавливается специальный кожух, который монтируется на специальный герметик и зажимается хомутом соответствующего размера.
Внутренняя отделка
Внутренняя отделка — натуральное бревно. Потолок и наличники окон обшиты вагонкой класса А, полок — из липы.

Мы остановили свой выбор на дровяной печи «ТЕПЛОДАР Русь 18» с навесным баком для воды на 55-88 л. Топка печи изготовлена из нержавеющей стали с содержанием хрома до 13%, а наиболее термически нагруженные элементы конструкции — из стали с содержанием хрома до 17%. КПД печи — 88%.
Уникальная конструкция позволяет нагревать воздух в парной, не пересушивая его, и получать много пара от большой каменки. Специальные камни для печи входят в комплект.

Парная, как и вся баня, сделана из цельного бревна, пол — шпунтованная доска 38 мм. Полок — из липы. Размеры полока всегда заранее согласовываются с клиентом. Чаще всего заказчики выбирают ширину нижнего полока 400 мм, верхнего — 600 мм, длину — 2000 м. Все внутренние и внешние поверхности бани нуждаются в долговременной защите, поэтому мы рекомендуем пользоваться продукцией проверенных марок типа «Тиккурила». Пол в бане мы покрываем специальным составом Supi Lattiaolju («Супи» — масло для пола), потолок и стены обрабатываем Supi Saunasuoja («Супи саунасуоя» для защиты бани), а для полонов используем Supi Laudesuoja («Супи лаудесуоя» для защиты полка).
Вся электрика разводится по согласованному с заказчиком предварительному проекту, в котором указывается, где и какие приборы будут смонтированы. Проводка — силовой кабель ПуГВв 3 х 1,5 — монтируется наружным способом и прячется в декорированный под дерево кабель-канал.

В каждой комнате предусмотрена естественная вентиляция. Вентканалы перекрываются специальными деревянным заглушками, которые регулируют поток воздуха вплоть до полного его перекрытия.
Есть ли смысл строить самому? Да, если есть много времени, возможность приобретения качественных материалов, опыт и знания в области деревянного домостроения. Но зачастую мало кто обладает всем этим комплексом, ведь необходимо быть и сварщиком (иметь, соответственно, сварочный аппарат для изготовления основания), и хорошим столяром, и электриком, и даже специалистом по вентиляции и отоплению. Если же таких навыков нет, придётся или нанимать специалистов. или изучать соответствующую литературу.

Закупка материала тоже отнимает много времени, а погрузка и выгрузка — массу физических сил. Тут уже нужно нанимать людей, а это опять дополнительные расходы.