Печь каменка с водяной рубашкой для бани своими руками
Слесарное дело /08-янв,2017,22;43 /
9652

Русская баня! Эти про нее говорят; и парит, и здоровье правит!
Но для такой русской бани, особенно в Сибири и северных областях, требуется хорошая печь-каменка, так как в ней парятся и моются даже и в морозы. Ее преимущества перед другими печами: нагревается очень быстро - приблизительно через 1,5-2 часа уже можно переходить к банным процедурам; стоимость, по сравнению с кирпичными или металлическими печами промышленного производства, небольшая; срок службы - до 25 лет (в зависимости от толщины металла, качества сварки и частоты процедур). Если в доме нетгорячей воды, то можно использовать каменку.
Разнообразные варианты металлических банных печей (а по сути - это целые котельные агрегаты) предлагает современная торговая сеть - глаза разбегаются. но цены «кусаются». А от этих «укусов» - в голове уже созревал свой проект дровяной печи, более простой, но не уступающей по своим характеристикам промышленным: конструкция стальная (сварная), с открытой конвекционной каменкой; с выдвижным зольником-ящиком. А вот вместо традиционного устройства для нагрева воды (бак на печи) «напрашивался» другой вариант водогрейной системы «водяная рубашка». Появпение в печи такого устройства для нагрева воды делает ее уже котлом, но суть не в названии, а в расширении функций. И когда люди моются в парильном отделении, когда после нескольких сеансов парения помещение немного остынет, но сегодня предпочитают париться в отдельном помещении, а мыться под душем в соседнем.
Ход работ по изготовлению банной печи своими руками
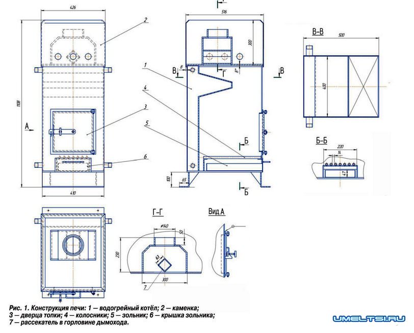
Основа печки - стальной кожух топки, сваренный из 5-мм листа. В передней стенке вырезаны два проема: дверной и поддувальный. Размер дверного проема таков (250x250 мм), что в него можно протолкнуть почти любое полено. В поддувальный проем вставпяется зольный ящик. Печка опирается на две «цокольных» (на всю длину) ножки с загнутыми лапками, усиленными каждая парой косынок.
На задней стенке кожуха топки тоже из 5-мм стального листа устроена емкость - водяная рубашка. Емкость имеет выступ («язык»), выполняющий роль свода топки и способствующий более быстрому нагреву воды. Это является особенностью моей печки-каменки. Рубашка имеет верхние и нижние патрубки с обеих сторон (с одной из сторон, при необходимости, ставятся заглушки), что позволяет устанавливать печь в любой угол бани или подключать дополнительный бак (например, напольный, через циркуляционный насос) и даже использовать как отопительный котел для соседних помещений.

Чертеж 2. Размещение печи и водяного бака в бане:
1 — печь-каменка с водогрейной рубашкой; 2 — труба дымовая из нержавеющей стали 115 мм; 3 — разделка дымовой трубы; 4 — негорючее покрытие стен; 5 — кран сливной; 6 — бак для горячей воды; 7 — кран разбора горячей воды; 8 — трубы термостойкие; 9 — перегородка; 10 — лавка для тазика.
Свои особенности имеет и дымоход. Он помещен в кожух каменки, размещенный над топкой. Между его стенками вварен поперечный рассекатель из квадратной трубы. В стенках в этих местах вырезаны отверстия, через которые разогретый горючими газами воздух из рассекателя выходит в каменку. В нижней части кожуха каменки по периметру просверлены отверстия для лучшей циркуляции воздуха.
Конструкция завершается дымовой трубой с дефлектором из нержавеющей стали, но это изделие - покупное.
Стальная дверца - собственной конструкции. она хороша тем, что позволяет выправлять ее температурные коробления, устраняя зазоры. Можно установить и покупную чугунную дверцу, соизмерив с ней прорезаемое окно в передней стенке печи.

Чертеж 3. Колосник: 1 — уголок; 2 – арматура; 3 — боковая стенка; 4 — задняя стенка.
Колосник самодельный, тоже сварной, из 14-мм стальных круглых стержней, приваренных к рамке. Рамка опирается одной стороной на уголок, приваренный к передней стенке, а другой через проставку - о дно топки. Дно вокруг колосника засыпается инертным материалом; песком, глиной или кирпичной крошкой, чтобы дольше не прогорало. При прогорании самого колосника его легко снять и отремонтировать или заменить новым. Также можно применить покупной чугунный колосник, согласовав его размеры с опорами в коробе. В качестве топлива используются в основном сосновые (еловые) дрова, реже - лиственных пород.
Выдвижной зольный ящик кроме прямого назначения играет роль поддувала - регулирует подачу воздуха в зону горения. Вместо зольного ящика можно применить покупную чугунную поддувальную дверцу, встроив ее в нижнюю часть топки. Но тогда надо будет очистить у печки дно от инертных материалов.
Печь в сборе устанавливается в парном отделении бани и посредством термостойких шлангов соединяется с навесным баком для горячей воды, на-
ходящимся в моечном отделении. Его стенки следует утеплить пенофолом или, в крайнем случае, обшить шпунтованной доской. Можно установить и напольный бак. Но тогда потребуется дополнить конструкцию циркуляционным насосом.
Дымовая труба выходит через потолок и крышу. На деревянных перекрытиях устроены многослойные разделки из оцинкованного железа и плит из минеральной ваты. Дымовой заслонки нет -и это самая лучшая защита от угара.

Легкого вам пара!
А. МАТВЕЙЧУК, г. Заводоуковск, Тюменская обл.